3D PAYSAGE propose des études d’aménagements paysagers de propriétés privées, autour du bassin rennais essentiellement. Les missions s’étendent du relevé de terrain jusqu’aux suivis des travaux.
Philosophie : le bon sens, le respect du site et le plaisir du client satisfait.
Les étapes complètes d’un projet :
1 - Premier contact
Un déplacement sur site permet de comprendre le terrain à aménager et de discuter des souhaits et besoins des clients. Le devis des différentes prestations proposées est établi.
2 - Relevé de terrain
Le site est relevé en 3 dimensions (plan et niveaux topographiques), avec prise de photos, analyse de site, prise en compte de la végétation. Ces éléments sont reportés dans un logiciel de dessin, qui servira de base de travail pour les missions suivantes.

3 - Esquisse du projet
Le jardin est dessiné en prenant en compte les éléments de relevés et d’analyse de site et les contraintes (PLU et diverses réglementations). Une présentation de l’esquisse est organisée sur site pour la contextualiser et ainsi permettre des évolutions. Le dossier de présentation est accompagné de planches de photos de références d’ambiances, de matériaux et de végétaux. Un chiffrage estimatif est réalisé.

4 - Modélisation du projet
Les bâtiments existants et le jardin projeté sont modélisés en 3 dimensions de manière réaliste. Cette maquette 3D est présentée en réalité virtuelle, en vidéo ou par des images de synthèses photoréalistes pour s’approprier le projet le plus fidèlement possible.

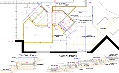
5 - Plans techniques
Pour réaliser le projet, il est nécessaire de dessiner des plans d’exécutions des travaux (plans des voiries, terrasses, mobiliers, plantations…). Un détail des quantités est fourni pour servir de base aux devis de réalisation du projet (soit en auto-construction, soit par des entrepreneurs du paysage).

6 - Suivis de travaux
Pour s’assurer du bon déroulé des travaux d’aménagement, des suivis réguliers sont assurés avec les clients et/ou les entreprises.
